広島で家やマンションを買う時も売るときも
トータテ住宅販売にお任せください
2025年9月~10月ご成約ありがとうございました
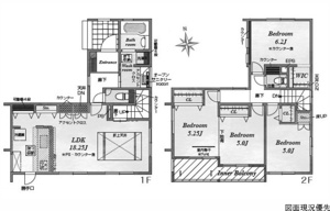
- 新築戸建佐伯区藤の木1,780万円
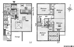
- 新築戸建安佐南区安東2,640万円
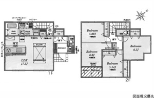
- 新築戸建中区東白島町6,480万円
- 土地東広島市高屋町杵原1,330万円
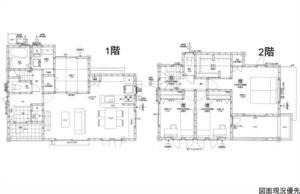
- 中古マンション南区大州3,790万円
- 新築戸建佐伯区藤の木1,780万円
- 新築戸建安佐南区安東2,640万円
- 新築戸建中区東白島町6,480万円
- 土地東広島市高屋町杵原1,330万円
- 中古マンション南区大州3,790万円
理想の家がきっと見つかる!
掲載中の物件
- 総掲載数
- 5,311件
- 新築戸建
- 907件
- 新着新築戸建
- 71件
- 営業所でご紹介できる
取り扱い総物件数 - 9,622件
2025年11月10日現在
ネットに公開されていない物件とは?
売主様の都合等でインターネットに公開されていない物件情報のことです。
「希望の物件がなかなか見つからない!」とお困りのお客様もまずはお問い合わせください。





















